产品介绍
产品介绍:
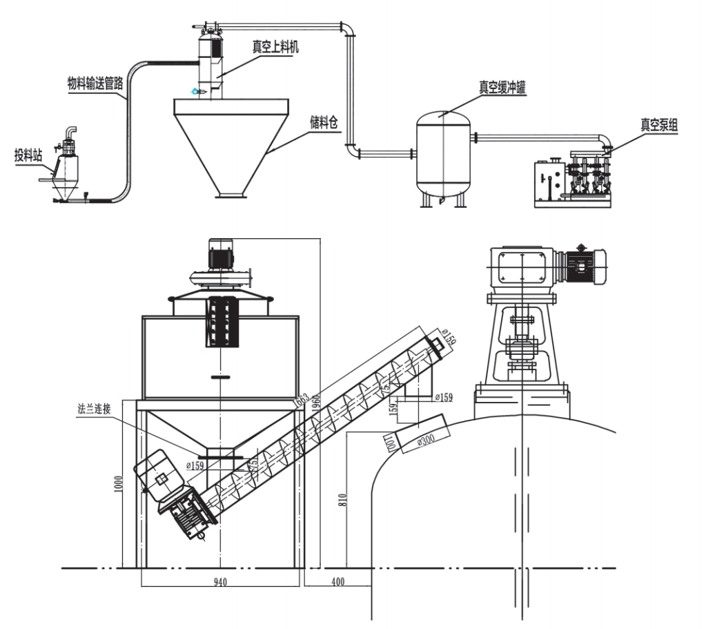
无尘投料站系统适用于制药、化工、食品行业中小袋物的投放、筛分和卸料,特别适用于针对流动性较差物料的投料和筛分,拆包时由于集尘风机的作用,可以避免物料粉尘到处飞扬。当小袋物料需要解袋并倒入下一道工序时,只需人工直接拆包后投入到无尘投料站系统,投料时所产生的物料粉尘由集尘风机进行收集。物料通过安全筛网可将大块物料和异物拦截,从而保证符合要求的颗粒排出。
产品特点:
1、结构简单,操作安全方便,易于维护;
2、无尘操作,实现全密闭开袋投料和管道输送:
3、无死角设计,便于清洁;
4、自动化集尘系统,杜绝粉尘飞扬,改善工作环境;
5、各种规格的开袋站能满足不同的处理量要求;
6、适用于制药、食品、化工、电池等所有涉及粉体的行业。
技术参数表:

工作原理:
无尘投料站采用除尘过滤式投料操作台可以实现人工投料过程无粉尘外溢,解包后的物料进入投料台内部的锥体内,外溢的粉尘在洋溢过程中被强大的负压气流所吸附,而后被过滤滤芯所阻止,干净的气体则经过滤芯内部再经风机排出;系统在工作过程中由于滤芯对于物料的吸附会导致过滤阻力的增加,因此需采用高流量的脉冲喷吹压力对滤芯进行反吹,反吹需经过一段工作时间后人工手动扳动手动扳阀进行反吹(向右 扳动为反吹,中间空挡,向左扳动是关闭)减少或清除表面所吸附的物料,使得风机的运行阻力保持在所允许的范围内。

让客户满意为客户增值
我们的目的只有一个:客户满意!服务人员要急客户所急、想客户所想,竭尽全力的为客户节省时间,带来更多的剩余价值。关于产品
常规产品出货量大,库存不稳定,确定采购前请联系客服或电话咨询确定货期。定制类产品需提供图纸,亦可提供现场技术要求及设备参数,我方出具图纸。关于质量
产品设备原料精心挑选,标准及制造工艺好,设备出厂前均经过质检部门层层检验,以确保产品出厂前的质量。若设备出现任何质量问题,及时与我们联系,以免对您造成损失。关于发货
各地物流专线直达,可选配送站自提或送货上门,物流费用可选到付,收到货物时请您务必开箱检查确认无误,如有产品数量、规格、质量等问题请及时与我们联系。关于质保
质保一年,终生维护,质保期内出现质量问题免费维修或更换,如人为原因或超力使用造成的损坏,视情况收取适当维护成本,设备如因使用年限过长产生的自然老化及损坏,亦收取相关维护成本。在线留言中心
欢迎您在下面给我们留言,我们将热忱为您服务!
手机号:156-3737-9131(杨经理)159-9300-0990(李经理) 电话:0373-5110588河南省新乡市化学与物理电源产业园区369号
版权所有:新乡市牧野区鸿运矿山机械有限公司 豫ICP备2021019659号-1
豫公网安备41071102000831号 版权所有,严禁转载或镜像,违者必究!